Metrics
27 views
5 downloads
Other
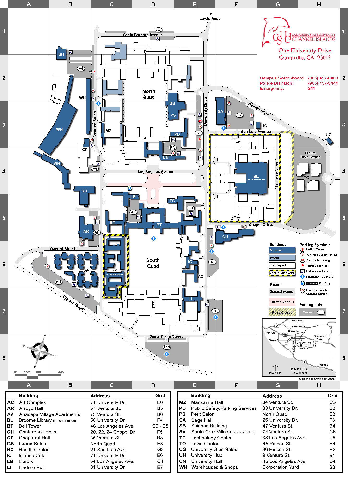
2006 Campus Map
Relationships
- In Collection:
Items
| Thumbnail | File information | Actions |
|---|---|---|
|
|
csuci_cv_01190.jpg Public
|
Download |
